恒大金碧天下別墅戶型解析:
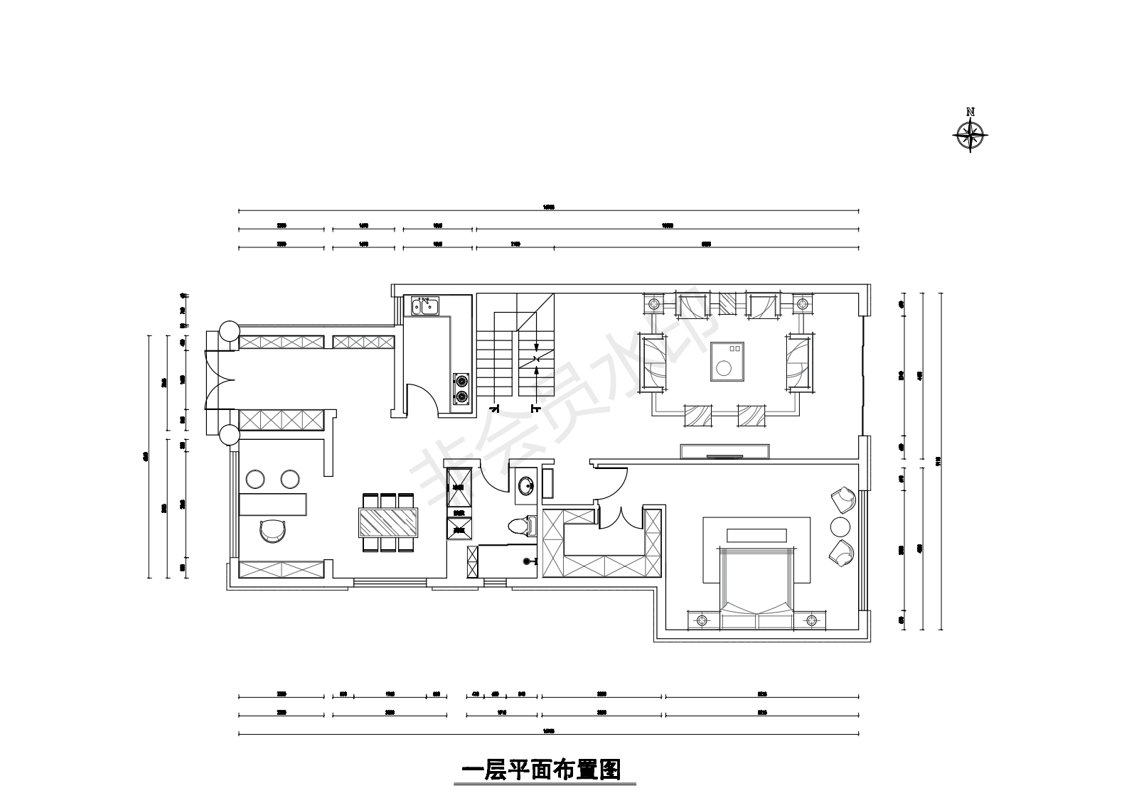
多層戶型各區(qū)功能明晰,方正又個性,廚衛(wèi)廳房全明設計,通風采光極佳;動靜分離、會客與休息清晰區(qū)分,互不干擾。
雙陽臺設計,且簡潔實用的洗衣間與廚房共有一個陽臺,讓生活變得輕松。
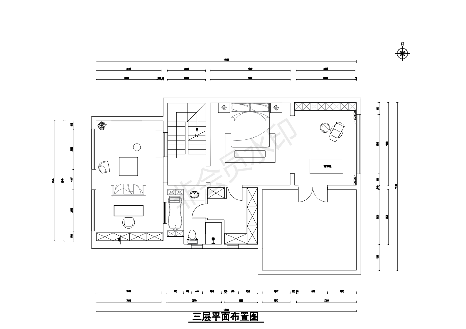
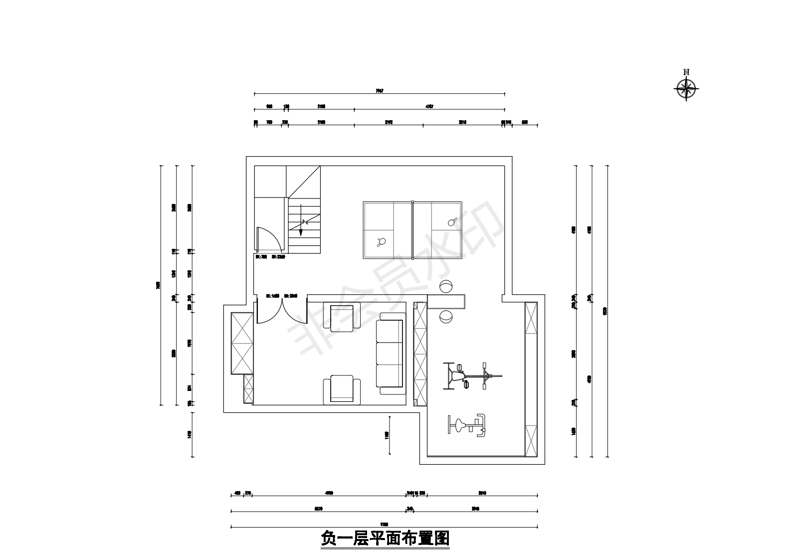
整個設計細致而綽約,方正中見靈變。
舒適而充滿情趣的二居,、功能布局合理,干濕分區(qū),廚房與廳室潔污分區(qū)。
主臥方型飄窗無疑成為增大采光面的點睛之筆,大客廳配以弧型的生活陽臺,開啟陽光生活。
全采光,布局合理,生活空間寬敞自在,盡享舒適生活。
豐富的對外的空間,陽臺設計,拓闊空間視野。
臥室客廳分離,動靜分明的設計,以保護私密性為基本前提。
臥室主次分明,主臥配以觀景飄窗,是欣賞鳥語花香的最佳角度。
客廳的通透設計,使空間感無限增強;
陽光無限的露臺休閑生活,時時感受清新自然和勃勃生機。

一層平面布置圖